...
USD/UAH: 42.55, USD/EUR: 50.25
  • 3 місяці тому
  • Переглядів: 62

Продаж 3к квартири на кільці Соборності (Сертифікат)

18 900 $

Опис

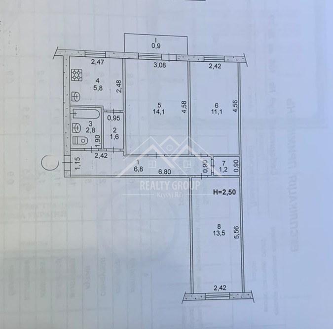
Пропонуємо до перегляду двосторонню 3к квартиру, що розташована в середині будинку по вул Соборности. Поряд уся необхідна інфраструктура для комфортного життя: заклади освіти, лікарні, зупинки громадського транспорту, ринок, супермаркети та парк для прогулянок.
Будинок має чисту та доглянуту придомову теріторію, багато місць для паркування авто, зелений затишний дворік.
Квартира загальною площею 58 кв.м., житловою 39 кв.м, має багато переваг
– три окремі затишні кімнати
– зовнішнє утеплення 100мм, двостороння
– нові МП вікна та балконний блок
– замінено розводку труб та радіаторів
– косфортний третій поверх
Встановлено лічильник тепла на дом; лічильники газа, світла та води у квартирі, тому комунальні платежі “приємно” бюджетні.
Готові продати за сертифікатом. Прекрасна квартира для великої сім’ї .
Приходьте, купуйте і втілюйте свої бажання.

Характеристики

  • ID об'єкта 93567
  • Тип нерухомості Квартира
  • Тип будинку Житловий фонд 80-90
  • Поверховість 3/5
  • Загальна площа 58 м2
  • Житлова площа 39 м2
  • Площа кухні 6 м2
  • Кількість кімнат 3
  • Санвузол Сумісний
  • Опалення Централізоване
  • Кутова Ні
  • Планування Роздільне
  • Меблі Ні
  • Техніка Ні
  • Паркування Відкрита парковка

Місцезнаходження

Схожі об'єкти

Compare

Написати нам
Натискаючи «Надіслати» ви погоджуєтесь з політикою конфіденційності, правилами сайту на обробку ваших персональних даних
Запропонувати торг
Натискаючи «Запропонувати» ви погоджуєтесь з політикою конфіденційності, правилами сайту на обробку ваших персональних даних
Призначити огляд
З 8:00 до 12:00 З 12:00 до 17:00 З 17:00 до 21:00
Натискаючи «Призначити» ви погоджуєтесь з політикою конфіденційності, правилами сайту на обробку ваших персональних даних