...
USD/UAH: 43.20, USD/EUR: 51.30
  • 4 місяці тому
  • Переглядів: 69

Продаж 2к кв на соцмісті

13 500 $

Опис

Шукаєте квартиру в перспективному та зручному районі?
Тоді зверніть увагу на цей варіант по вул. С. Тільги — ідеальна основа для створення затишку на свій смак 🏡
Про квартиру:
1 поверх 4-поверхового будинку
світла та тепла
всі вікна МП, встановлені грати
зовнішнє утеплення стін
підлога — лінолеум
взимку дуже тепла
без боргів, документи в повному порядку
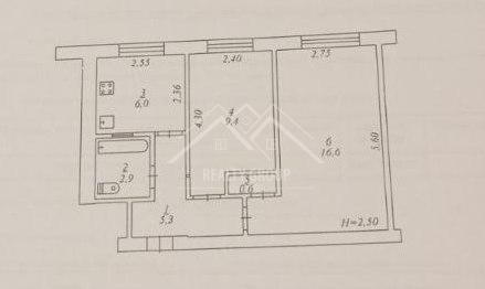
Планування та площа:
загальна — 40,8 м²
житлова — 28 м²
кухня — 6 м²
Локація — великий плюс!
Поруч: 🛒 ринок, АТБ, 🧸 дитячий садок, 🏫 школа, 🚏 зупинка транспорту — все необхідне в пішій доступності.
📞 Перегляд у зручний для вас час!
Телефонуйте

Характеристики

  • ID об'єкта 94154
  • Тип нерухомості Квартира
  • Тип будинку Хрущовка
  • Поверховість 1/4
  • Загальна площа 40.8 м2
  • Житлова площа 28 м2
  • Площа кухні 6 м2
  • Кількість кімнат 2
  • Санвузол Сумісний
  • Опалення Централізоване
  • Кутова Так
  • Планування Вільна
  • Меблі Ні
  • Техніка Так
  • Паркування Відкрита парковка

Місцезнаходження

Схожі об'єкти

Compare

Продаж 2к кв на соцмісті

Юлія Сергіївна Єрмак

Менеджер з продажу
Написати нам
Натискаючи «Надіслати» ви погоджуєтесь з політикою конфіденційності, правилами сайту на обробку ваших персональних даних
Запропонувати торг
Натискаючи «Запропонувати» ви погоджуєтесь з політикою конфіденційності, правилами сайту на обробку ваших персональних даних
Призначити огляд
З 8:00 до 12:00 З 12:00 до 17:00 З 17:00 до 21:00
Натискаючи «Призначити» ви погоджуєтесь з політикою конфіденційності, правилами сайту на обробку ваших персональних даних